Paylaşın

YEŞİL TATİL MİMARLIK

Saz çatılı kulübeler kırsal turizm için tasarlandı

Yerel malzemeler, katılımcı üretim ve çağdaş yorumlarla şekillenen konaklama projesi, mimarlığı birlikte üretme ve yaşama pratiği olarak ele alıyor.

 

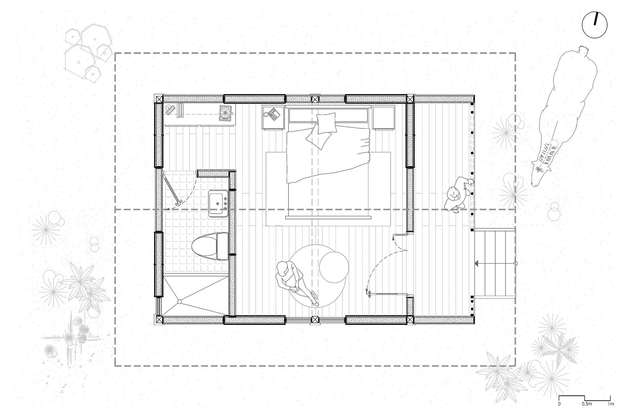
Ekvador'un Riobamba Kantonunun Quimiag köyünde konumlanan La Bocatoma Housing Modules, Cubbil studio tarafından tasarlandı. El Altar Yanardağı’nın eteklerinde 2.800 metre yükseklikte konumlanan yapılar, doğa, gelenek ve topluluk arasında kurulan hassas bir dengeyi temsil ediyor. Kırsal turizm için tasarlanan dört adet kulübe toplam 110 metrekare alana sahiptir.

 

 

Topluluk turizmi ve çevresel sorumluluk ilkeleriyle, modern tasarımı bölgenin geleneksel mimarisiyle buluşturan projeyi oluşturan yapılar, doğal manzaradan, kuş seslerinden ve iklimden en iyi şekilde faydalanacak biçimde arazide konumlandırılmıştır. Kolektif mingalarla yürütülen katılımcı yapım süreci, kuşaklar arasındaki bilgi aktarımını ve topluluk bağlarını güçlendirmiştir.

 

 

 

Tasarımda yerel malzemelerin kullanımı ön plana çıkarılmış; bu sayede hem çevresel etki azaltılmış hem de atalardan gelen yapım tekniklerinin devamlılığı sağlanmıştır. Geleneksel bağdadi yapı sistemi, prefabrike panellerle yeniden yorumlanmış; yerel malzemeler, ısıl konfor ve sürdürülebilirlik ön planda tutulmuştur. Kulübeler, betonarme kaide üzerine oturan okaliptüs ahşap taşıyıcı sistem, toprak dolgulu paneller ve páramo otu kaplı çatılardan oluşuyor.

 

 

 

 

 

 

Mimari: @cubbil_studio – Cubbil Studio

Fotoğraflar: Andrés Villota


Yorumunuzu bırakın

Your email address will not be published. Required fields are marked *
Sadece kayıtlı kullanıcılar yorum bırakabilir.

Paylaşın


avatar
Zehra Karahasan

Editor - yesilodak.com