Paylaşın

MİMARLIK

Mavi çatılı ev

Tüm elektriğini güneş enerjisi ile sağlayan, enerji verimliliği ve mekânsal yaratıcılığı bir araya getiren evi mimar çift kendileri için tasarladı.

 

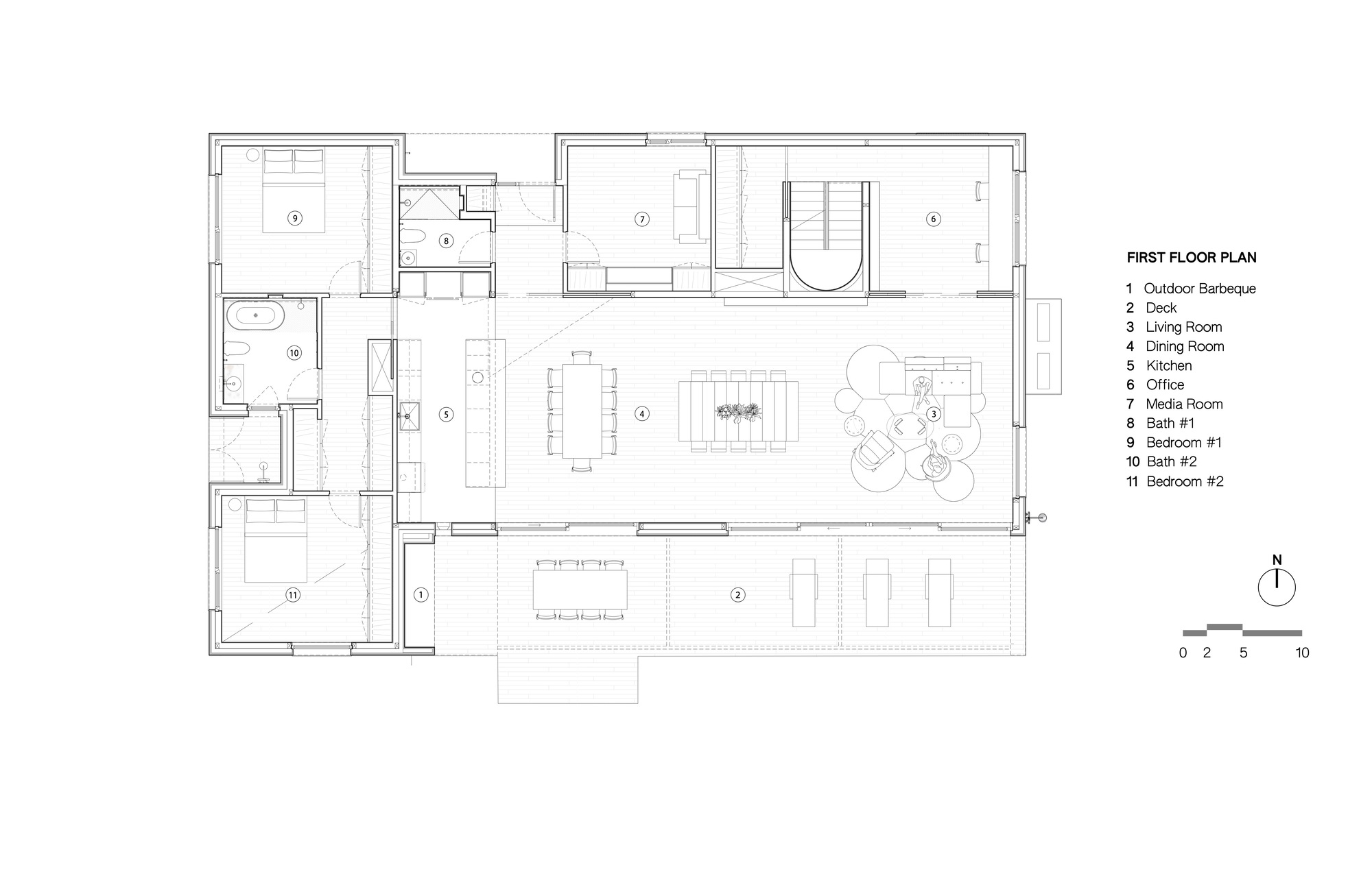
ABD, Hopkinton’da yer alan Riverhouse, WORKac tarafından tasarlandı. Mimarlar Amale Andraos ve Dan Wood, 297 metrekarelik evde hem kişisel hem de deneysel bir mimari yaklaşım ortaya koymuştur. Yıllarca yazlık ve mimarlık buluşmalarına ev sahipliği yapmış eski mevcut yapının, pandemiyle birlikte tam zamanlı yaşama uygun olmadığı anlaşılmıştır. Bu nedenle eski yapının ruhu korunarak tamamen yeni bir ev inşa edilmiştir.

 

 

Taşkın riskine karşı yerden yükseltilen evde, Pasif Ev standartlarına uygun olarak yüksek enerji verimliliği hedeflenmiştir. Üç camlı pencereler, batarya depolamalı güneş panelleri ve kalın yalıtımlı duvarlar, evin yıl boyunca yalnızca elektrikle çalışmasını sağlayarak çevresel ayak izini önemli ölçüde azaltıyor.

 

 

Mavi metal kaplama ile tanımlanan kendine özgü çatı formu, farklı yüksekliklerde iç mekanlar yaratıyor. Malzeme seçimleri, evin dokunsal ve görsel zenginliğini daha da güçlendiriyor. Dış cephede ısıya dayanıklı dişbudak kaplama, iç mekanda ise sıcaklık katan el yapımı seramikler ve ham kontrplak yüzeyler kullanılmıştır.

 

 

Dikkatlice yerleştirilmiş pencereler çapraz havalandırma sağlarken, entegre depolama alanları ve kompakt dikdörtgen plan ise mekansal verimliliği en üst düzeye çıkarıyor. Ayrıca mobilya, perde ve detaylarda farklı disiplinlerden tasarımcıların katkı verdiği projede kolektif bir üretim süreci yürütülmüştür.

 

 

Mimari: @work.ac WORKac

Fotoğraflar: @brucedamonte Bruce Damonte Photo


Yorumunuzu bırakın

Your email address will not be published. Required fields are marked *
Sadece kayıtlı kullanıcılar yorum bırakabilir.

Paylaşın


avatar
Zehra Karahasan

Editor - yesilodak.com