Paylaşın

MİMARLIK

İklimle uyumlu bir sanat stüdyosu

Sanat üretimi, düşünme ve yaşam pratiklerini bir araya getiren stüdyonun mekânsal kurgusu, malzeme seçimleri ve çevresel stratejileri mimarlığın sade ve duyarlı yaklaşımını yansıtıyor.

"Karen'deki manzara sessiz bir yoğunluk taşıyor ve stüdyo da bu duruma hafifçe yerleşen bir şey olarak tasarlandı. Amaç, malzeme, ışık ve yapının belirli bir kısıtlama ile hareket ettiği, hem içe dönüklüğü hem de üretimi barındıran bir alan yaratmaktı. Bina, kalıcılık, iklim ve hafıza üzerine düşünmenin bir yolu olarak arketipik Afrika formlarından ilham alıyor. Burası, üretim sürecinin çevresiyle diyalog halinde, yavaşça geliştiği bir yer." David Adjaye

 

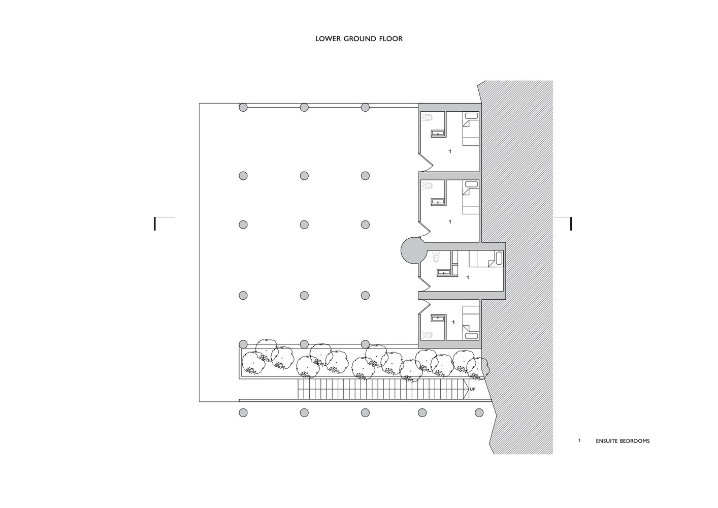
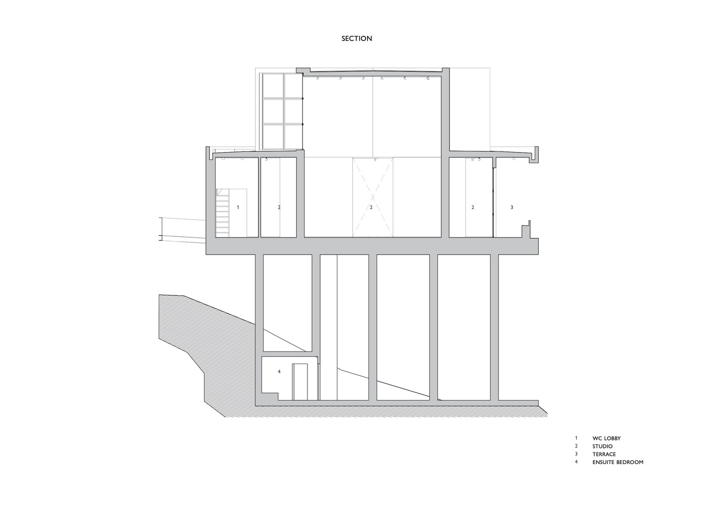
Kenya, Nairobi’nin Karen bölgesinde yer alan Kaloki Nyamai Stüdyosu, Adjaye Associates Architects tarafından tasarlandı. Dar ve eğimli bir arazi üzerine yerleştirilen 641 metrekarelik yapı, çevresiyle güçlü ama sakin bir ilişki kurmayı hedefliyor.

 

Tasarım, geleneksel Afrika mimarisinin mekânsal sadeliği ve iklimle uyumlu çözümlerinden ilham alıyor. Düşük karbonlu beton, tuğla ve toprak sıva gibi malzemeler kullanılarak hem çevresel etki azaltılmış hem de yapı doğayla bütünleşmiştir. Beton ayaklar üzerine yükseltilmiş yapı, zemine minimum müdahale ederken altından hava akışına da izin veriyor.

 

Bina, çevresel performansa önem veriyor. Isı kütlesi sayesinde sıcaklık dengelenirken, doğal havalandırma ile iç mekân konforu sağlanıyor. Güneş panelleri enerji üretirken, yağmur suyu toplama sistemi suyun yeniden kullanımını mümkün kılıyor.

 

 

Binaya giriş, ağaçlarla çevrili bir yol boyunca ilerleyen kademeli bir deneyim sunan bir yaklaşımla tasarlandı. Zemin katta yapının merkezinde yer alan ana stüdyo, geniş ve aydınlık bir üretim alanı sunuyor. Ayrıca bu katta ana giriş, mutfak, banyo, ofis ve depolama alanları yer alıyor. Banyonun üstündeki asma katta bir yatak odası bulunurken, kolonların açıkta olduğu alt zemin katta ise, banyolu dört misafir odası var.

 

 

 

 

 

Mimari : @adjayeassociates Adjaye Associates Architects

Fotoğraflar : Mutahi Chiira Photo, Kaloki Nyamai Photo


Yorumunuzu bırakın

Your email address will not be published. Required fields are marked *
Sadece kayıtlı kullanıcılar yorum bırakabilir.

Paylaşın


avatar
Ozan Akalın

Editor - yesilodak.com